Objektart
Adresse
Objektdaten
Informationen
Ausstattung
Details
Dieses freistehende Einfamilienhaus aus dem Jahr 1937 steht in einer ruhigen Wohnlage von Brackenheim und überzeugt durch seinen gepflegten Zustand, eine solide Bausubstanz und ein schönes Grundstück mit rund 603 m² Fläche.
Hier können Sie ankommen, sich wohlfühlen - und mit ein wenig Kreativität Ihren ganz persönlichen Wohntraum verwirklichen.
Das Haus bietet etwa 100 m² Wohnfläche und eignet sich ideal für Paare, Familien oder alle, die ein Zuhause mit Charakter und Charme suchen.
Im Erdgeschoss erwarten Sie ein helles Wohnzimmer, ein gemütliches Esszimmer, ein Schlafzimmer, ein weiteres Zimmer (Garderobe), die Küche mit vollständiger Einbauküche, sowie ein modernisiertes Tageslichtbad mit begehbarer Dusche und ein separates WC mit Fenster.
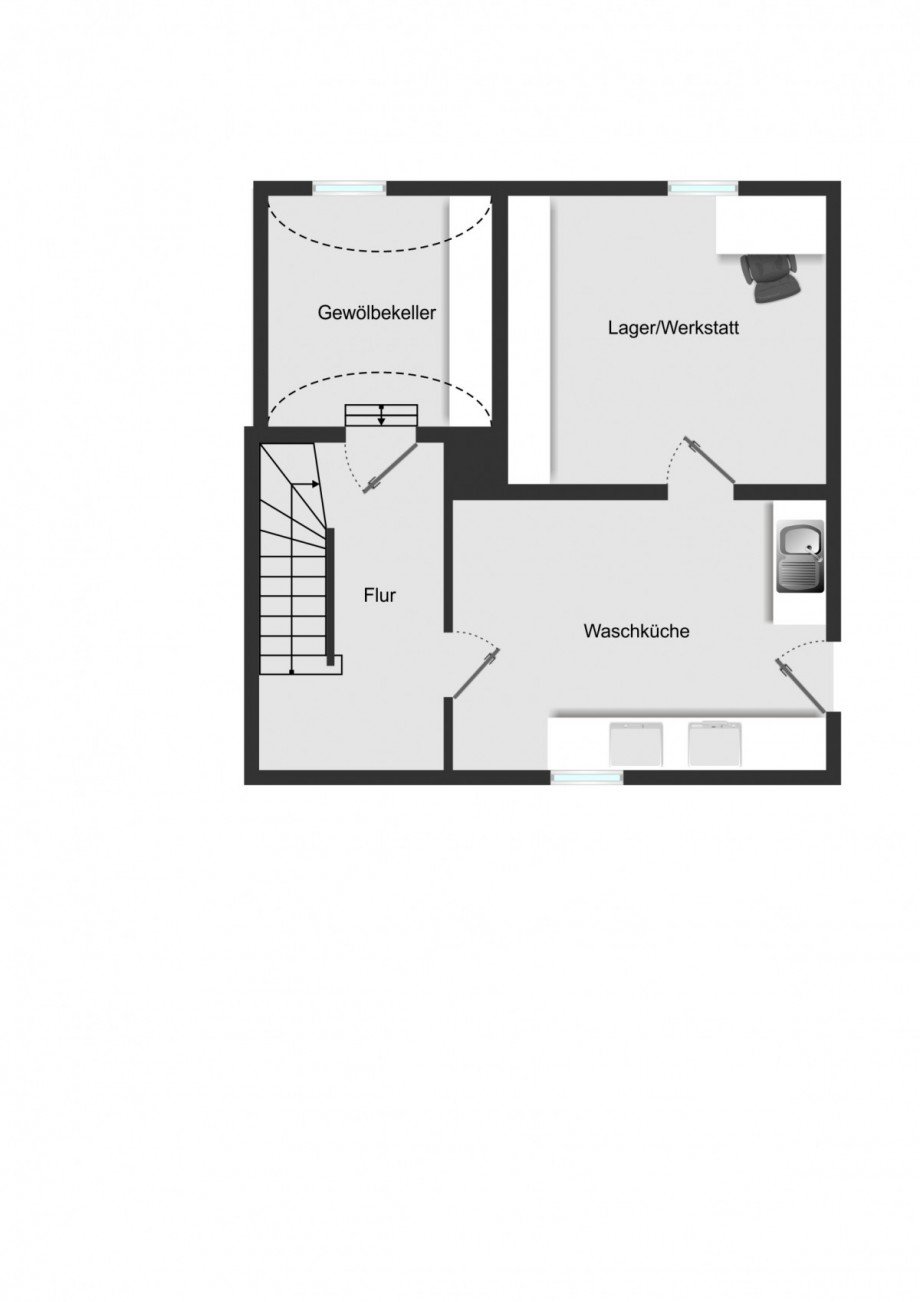
Im Dachgeschoss stehen drei zusätzliche Zimmer, eines davon mit WC und Waschbecken, und ein kleiner Vorplatz zur Verfügung - ideal als Kinderzimmer, Gästezimmer oder HomeOffice. Das Haus ist unterkellert und bietet damit praktischen Stauraum, eine Waschküche mit direktem Zugang zum Garten sowie einen Gewölbekeller.
Für Behaglichkeit sorgt die Holzofen-Heizung, das Warmwasser wird über Elektro-Boiler bereitgestellt. Die Fassade mit Vollwärmeschutz, das isolierte Dach, Holzfenster (ca. 1979) sowie Dachfenster aus Kunststoff mit elektrischen Rollläden (ca. 2002) unterstreichen den gepflegten Gesamteindruck.
Rund ums Haus lädt das ebene Grundstück und der pflegeleicht angelegte Garten zum Entspannen und Gärtnern ein. Eine überdachte Terrasse bietet Platz für gemütliche Stunden im Freien. Gartenhaus und Gewächshaus erweitern die Nutzungsmöglichkeiten.
Eine Einzelgarage, ein Carport für Anhänger sowie ein weiterer Stellplatz runden das Angebot ab.
Ein Haus mit Geschichte, in dem sich neue Erinnerungen formen dürfen - solide, gepflegt und bereit für die nächste Generation.
Zögern Sie nicht und vereinbaren Sie noch heute einen Besichtigungstermin für dieses attraktive Immobilienangebot. Wir freuen uns auf Ihre Kontaktaufnahme.
- Holz-Ofenheizung
- Elektro-Boiler für Warmwasser
- Holzfenster aus 1979
- Dachfenster Kunststoff mit elektrischen Rollläden neu ca. 2002
- Vollwärmeschutz
- Dach isoliert
- Einbauküche
- Tageslichtbad mit begehbarer Dusche, modernisiert
- Separates WC mit Fenster
- Dachboden
- unterkellert
- Waschküche mit direktem Zugang zum Garten
- Gewölbekeller
- Überdachte Terrasse vor dem Haus
- ebenes Grundstück, pflegeleicht angelegter Garten rings ums Haus
- Einzelgarage
- Überdachung für Anhänger
- zusätzlicher Stellplatz
- Gartenhaus
- Gewächshaus
Dieses Einfamilienhaus liegt in familienfreundlicher Lage direkt in Brackenheim - einer charmanten Weinbau- und Schulstadt im Zabergäu, nur rund 15 Kilometer von Heilbronn entfernt. Hier verbindet sich ruhiges Wohnen mit bester Erreichbarkeit: Einkaufsmöglichkeiten, Ärzte, Apotheken, Cafés und Restaurants sind bequem zu Fuß erreichbar. Familien profitieren von einem hervorragenden Bildungsangebot - vom Kindergarten über Grund- und Gemeinschaftsschule bis zum angesehenen Zabergäu-Gymnasium ist alles vor Ort.
Auch die Infrastruktur überzeugt: Eine gute Anbindung nach Heilbronn und in Richtung Stuttgart macht die Lage für Pendler attraktiv, während kurze Wege im Alltag für hohen Wohnkomfort sorgen.
Sportlich und freizeitlich hat Brackenheim viel zu bieten - vom vielfältigen Vereinsleben bis hin zu Wander- und Radwegen durch die Weinberge direkt vor der Haustür. Besonders reizvoll ist die Nähe zur Natur: Nur wenige Schritte genügen, und man steht mitten in den Reben mit weitem Blick über das Zabergäu.
Insgesamt bietet diese Lage eine gelungene Mischung aus dörflicher Ruhe und städtischer Nähe - ideal für Familien, Naturfreunde und alle, die Wert auf Lebensqualität, Gemeinschaft und eine charmante Umgebung legen.
Mehr zu Brackenheim finden Sie auch im Internet unter www.brackenheim.de
Ein Energieausweis liegt uns für diese Immobilie bereits vor und kann bei einer Besichtigung jederzeit gerne eingesehen werden.
Wir versichern, dass wir vom Eigentümer oder einem berechtigten Dritten befugt sind, diese Immobilie zu den genannten Bedingungen anzubieten. Wir erklären weiterhin, dass die gemachten Angaben ausschließlich auf Informationen des Eigentümers beruhen. Wir sind selbstverständlich ebenfalls um richtige Angaben bemüht, können jedoch für die Angaben des Eigentümers keine Haftung übernehmen.
Die im Exposé gemachten Angaben sind ausschließlich für Sie als Interessent gedacht, eine Weitergabe an Dritte ist untersagt.
Die visualisierten Grundrisse basieren auf den tatsächlichen Grundrissen und dienen lediglich zur besseren Vorstellung der Räumlichkeiten vor Ort. Eine Garantie für die Richtigkeit der Angaben und Einzeichnungen können wir nicht übernehmen.
Besichtigungen und Verhandlungen erfolgen ausschließlich über uns - wir freuen uns über Ihre Kontaktaufnahme.
Weitere interessante Immobilienangebote finden Sie auf unserer Website unter www.lj-immo.de
Ansprechpartner
Mobil: +49 1523 3960597
lars.janssen@lj-immo.de
Energieausweis (Bedarfsausweis)
257,80 kWh / (m²*a) Endenergiebedarf
257,80 kWh / (m²*a) Endenergiebedarf
257,80 kWh / (m²*a) Endenergiebedarf
257,80 kWh / (m²*a) Endenergiebedarf
257,80 kWh / (m²*a) Endenergiebedarf Weitere Informationen
| Wesentlicher Energieträger | Holz |
| Energieausweis Ausstelldatum | 2025-10-22 |
| Energieausweis gültig bis | 21.10.2035 |
| Energieausweis Jahrgang | ab dem 1.5.2014 |
| Energieausweis Werteklasse | H |
| Energieausweis Baujahr | 1937 |
| Energieausweis Gebäudeart | Wohngebäude |
| Heizung | Ofenheizung |
| Befeuerung | Holz und Hackschnitzel |
Ich bin damit einverstanden, dass mir Karten von Google angezeigt werden. Es gelten die Datenschutzbedingungen von Google (https://policies.google.com/privacy).
Ich bin einverstanden